La residencia de mayores tendrá ‘estilo mojaquero’ y un gran patio
El geriátrico y centro de día estará ubicado en el Palmeral, contará con 60 plazas y 2.884m

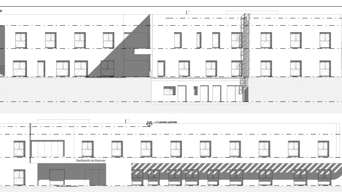
Alzado de la residencia de mayores de Mojácar, de estilo sencillo y huecos cuadrados.
La residencia de mayores de Mojácar ya tiene proyecto. Hace unos días Diputación sacó a información pública el diseño realizado por el estudio tijoleño ES Arquitectura. Una propuesta que apuesta por una estética “mojaquera”. Es decir, bloques blancos, puros, sin zócalos, con carpintería de color madera y huecos cuadrados principalmente. Como decoración, solo las pérgolas que se dispondrán en las fachadas este y sur, para disminuir la incidencia del sol en verano.
La residencia de mayores se ubicará en la zona conocida como el Palmeral, a escasos 300 metros del mar. En concreto, en una parcela municipal de unos 9.919 metros cuadrados, de los que más de 2.000 corresponden a zonas verdes. Está enclavada entres las calles Orán, Artesas, Zarzas y Salvia, cerca de los apartamentos residenciales Pierre et Vacances.
Un patio interior
El edificio, que será residencia y centro de día, se ubicará en la zona sur de la parcela y se distribuye con forma de L en torno a un patio o jardín al que se accede solo desde el interior de la residencia, controlando así en todo momento a los usuarios. El acceso principal será desde la calle Salvia, con uno secundario al sótano desde la calle Orán. El motivo de este emplazamiento es garantizar el soleamiento, ya que linda con la zona verde de la parcela que nunca se va a construir, y así se puede conectar el patio interior de la residencia con la zona verde, como si fuese una ampliación de éste.
La zona norte de la parcela se plantea como espacio de ampliación donde se podrán construir en un futuro espacios para la propia residencia, huertos o edificios complementarios, como por ejemplo viviendas tuteladas para mayores, aprovechando el mismo acceso, aparcamiento…
Estancias soleadas
El edificio tiene una superficie total construida de 2.884 metros cuadrados, divididos en sótano y dos plantas.
La arquitecta Esperanza Salas ha diseñado el centro de forma que todas las estancias de mayor uso para los residentes y usuarios del edificio tengan orientación este-oeste, ya que se favorece la ventilación cruzada y sobre todo la iluminación, siendo la más idónea para dormitorios y zonas de estar. Reciben el sol de la mañana y el de la tarde, evitando así que los dormitorios tengan fachada norte, que nunca recibirían luz natural.
Al tratarse de una residencia y un centro de día en el mismo edificio, se ha diseñado de tal manera que funcione como un conjunto, con un único punto de control para los dos usos, con salas comunes que pueden ser utilizadas tanto para los usuarios residentes como para los de diario, pero si fuese necesario que se puedan separar con accesos independientes.
Según detalla el pliego de condiciones técnicas, la residencia tendrá 60 plazas y el centro de día capacidad para otros 20 usuarios. La residencia de mayores ofrecerá alojamiento, convivencia y atención integral a sus usuarios. Tiene una función sustitutoria del hogar familiar, ya sea de forma temporal o permanente para personas mayores en situación de dependencia. Entre sus objetivos está contribuir a potenciar la autonomía física, conseguir la seguridad y bienestar personal, respetar la intimidad del residente y favorecer las relaciones sociales y la labor del personal en cuanto al desarrollo de sus funciones.
Contará con todos los servicios, como comedor, sala de enfermería, de terapia ocupacional, fisioterapia, sala médica y de farmacia, además de despachos para los profesionales, hall, sala de juntas, almacén, cocina, lavandería, lencería y demás servicios.
En centro al centro de día, ofrecerá una atención integral durante el día a personas en situación de dependencia, con el objetivo de mejorar o mantener el mejor nivel posible de autonomía personal y calidad de vida, apoyando así a sus familias.
Según los informes que maneja el Ayuntamiento de Mojácar, la comarca del Levante tiene necesidad de unas 500 plazas para personas mayores.