Licitadas por más de 9,5 millones de euros las obras del nuevo IES de Almerimar
Hay hasta el 17 de diciembre para presentar ofertas y el plazo de ejecución es de 24 meses

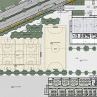
Proyecto del diseño del interior del nuevo IES de Almerimar.
La Consejería de Desarrollo Educativo y Formación Profesional, encabezada por Carmen Castillo, ha anunciado este lunes la licitación de las obras para la construcción del nuevo instituto de Almerimar, en el municipio de El Ejido, con un presupuesto de 9.551.848,05 euros. Este proyecto, que cuenta con un plazo de ejecución de 24 meses, responde, según la consejera, a una "demanda muy esperada" por la comunidad educativa y se suma a otras iniciativas "emblemáticas" llevadas a cabo en la provincia en los últimos años.
La licitación ha sido dada a conocer por Castillo en su comparecencia ante los periodistas junto a la consejera de Cultura y Deporte, Patricia del Pozo, antes de presidir la entrega de los Premios Flamenco en el Aula, celebrada en el Conservatorio de Danza 'Kina Jiménez' en Almería.
Por tanto, nuevo horizonte a la vista para un nuevo instituto que se levantará en una parcela de 13.200 metros cuadrados, situada en la confluencia de la avenida de la Sal y la calle Mar Azul de Almerimar, y que contará con un total de 4.974 metros cuadrados construidos para poder ofrecer 620 plazas escolares, distribuidas en cuatro líneas de Secundaria Obligatoria y dos de Bachillerato. Y todo ello con un objetivo claro que no es otro que buscar dar respuesta a las crecientes necesidades de escolarización de la zona.
Instalaciones modernas y sostenibles
El nuevo IES de Almerimar dispondrá de modernas instalaciones, que incluirán 16 aulas polivalentes para Secundaria Obligatoria, dos aulas de música, dramatización y audiovisuales, aulas de Educación Plástica y Audiovisuales, así como espacios para talleres y refuerzo pedagógico.
Por su parte, en Bachillerato, el centro contará con cuatro aulas adicionales, junto a laboratorios compartidos con la ESO y un aula de Tecnología.
Además, el área común incluirá 10 departamentos, un aula de Educación Especial, biblioteca, gimnasio con vestuarios y un espacio para la orientación académica. El área administrativa albergará los despachos de dirección, secretaría, conserjería y sala para las asociaciones de padres y madres.
Y entre los servicios comunes, el instituto contará con una cafetería, vestuarios y almacenes, y en el exterior se instalarán dos pistas polideportivas, una zona de juegos, un huerto escolar, un aparcamiento para el profesorado, áreas ajardinadas y espacio reservado para futuras ampliaciones.
Asimismo, el nuevo centro educativo integrará tecnologías sostenibles, como un sistema de bioclimatización que garantizará el confort en los meses más cálidos y paneles solares fotovoltaicos para la generación de energía eléctrica.
Un proyecto cofinanciado por Europa
Esta construcción forma parte del Plan de Infraestructuras Educativas de la Consejería de Desarrollo Educativo y Formación Profesional, gestionado por la Agencia Pública Andaluza de Educación, y cuenta con cofinanciación europea a través del programa de Andalucía Feder 2021-2027. Las empresas interesadas en presentar ofertas tienen de plazo hasta el próximo 17 de diciembre.